5948 Entreprises en ligne
Nos forfaits!

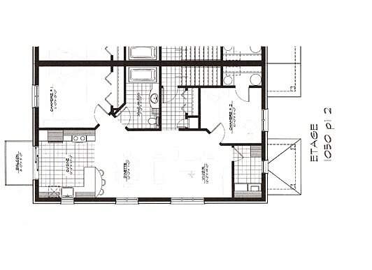
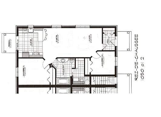
Condo neuf à vendre, Chicoutimi

CONDO MODERNE, À partir de

Chicoutimi

147 831$

Nouveau!
Description par le constructeur

Superbe condo moderne situé sur la rue Jasmin à Jonquière, dans le sympathique quartier des Bois-Vins à Chicoutimi.

Condition générales:

Garantie Qualité Habitation (incluse)
Certificats de localisation (inclus)
Notaire (inclus)
Électricité durant la construction (inclus)
Terrain aménagé (inclus)
Deux (2) stationnements asphaltés (inclus) "un en arrière de l'autre"
Une remise de 6 pieds X 8 pieds (incluse)
Service de décoration (inclus)

Conditions particulières

Planchers : poutrelles "open joist"
Feuilles 3/4 emb. Egde Gold 4 pieds X 8 pieds collé/vissé/énermax 12 pouces de laine insonorisante
Dalle de béton fibre de 1.5 pouce à l'étage, Evermax, 2 gypse coupe-feu
Mur mitoyen : gypse, résiliante, sonopan, béton coulé

Toiture

Fermes de toit à 24 pouces c/c
Panneau gauffré 5/8 embouveté 4 pieds X 8 pieds
Bardeaux d'asphalte (Garantie limité à vie)
Membrane Résisto
Ventilateur maximum

Finition extérieure

Brique et canaxel
Gouttières blanches
Fenêtres thermos "double" Low Argon

Peinture
Choix de 4 couleurs pastel plus le blanc
Plinthe en blanc

Avec taxes et retour de taxes
Unité haut : 159 999 $
Unité bas : 164 999 $

8 photos disponible(s)

mise en ligne le 16 Feb 15:22

Calculez votre hypothèque!

165 318$

Communiquez avec le constructeur
Les Constructions Philippe Blackburn

Mission de l'entreprise : Offrir à la clientèle des services de premier ordre guidés par trois valeurs essentielles pour l'ensemble des activités de l'entreprise soit : La qualité de construction Un haut niveau de fiabilité Le respect des délais et des divers échéanciers. Garantir à la clientèle la meilleure valeur qualité/prix par une concentration des approvisionnements, le maintien et le suivi d'un processus régulier de démarche de prix, tout en ayant une sélection rigoureuse des employés, des fournisseurs et des sous-traitants, lesquels doivent adhérer aux valeurs précédemment mentionnées.

Tél.: 418 690-6703

Fax: 418 698-2635

www.constructionspb.com

« LA NOUVELLE PLATEFORME DÉDIÉE AUX CONSTRUCTEURS ET LEURS ACHETEURS! »

-CONSTRUCTEURDIRECT

Pourquoi Constructeur Direct?

Sur Constructeurdirect.com vous trouverez toutes les constructions neuves ou rénovées de votre région par un constructeur certifié ainsi que tous les projets de développements résidentiels ou commerciaux à venir.

Autoconstructeur? Trouvez des fournisseurs et des sous-traitants prêts à vous épauler dans toutes vos démarches en construction!